Column
実際の見積書を公開!リノベーションと建て替え比較!
古くなった建物をフルリノベーションするか、建て替えたほうがよいのか?
迷われている方はたくさんいるんではないでしょうか?
今回は、当社でも多くなってきた「リノベvs建て替え」どっちがいいの?
という相談事例を交えながら、メリットデメリットをまとめていきたいきます。
エムズアソシエツでは、リノベーションだけでなく、新築建て替えの場合も含めて相談が可能です。
どちらがよいかを判断するためには、リノベも建て替え(新築)もできる事業者でないと公平な目線で比較検討が難しくなります。
松原 保嗣
岐阜市拠点の株式会社エムズアソシエイツ代表取締役。20年以上、注文住宅の設計施工に携わり、高気密・高断熱住宅やパッシブデザインを取り入れた設計を通して、圧倒的な快適住空間を提供。自社ブログや年間100回以上のセミナー登壇を通じ、延べ500名以上の施主の家づくりを支援し、施主啓発にも努める。 保有資格: 日本エネルギーパス診断士、省エネ建築診断士、気密測定技能者、地盤インスペクター、福祉住環境コーディネーター2級、福祉用具専門相談員
01.リノベーション vs 建て替え:まずは基本を理解しよう
まずは、リノベーションとリフォームの違いについて簡単に解説します。
リフォーム ⇒ 修繕・元の状態に復元させる
リノベーション ⇒ 性能向上など、今の状態より一層よいものに作り替える
という違いがあります。
断熱リフォームなんて呼ばれるものは、リノベーションの部類に入ります。
リノベーションとは、既存の住宅の構造や基礎を活かしつつ、内外装や間取りを大幅に改修する工事を指します。
一方建て替えは、既存の建物を完全に撤去し、新しく建て直す方法です。
| 項目 | リノベーション | 建て替え |
|---|---|---|
| コスト | 一般的に低め | 高め(解体費用含む) |
| 工期 | 比較的短い | 長め(解体→新築) |
| デザイン自由度 | 構造によって制限あり | 基本自由 |
| 既存資材の活用 | 可能、味わいを残せる | 新規に全て |
専門用語:
-
既存住宅:既に建っている住宅や構造体のこと。
-
構造耐力:建物が地震や風に耐える力のこと。
02.次に、自分達にはどちらがよいのかを考えてみましょう
コストだけに関して言えば、リノベのほうが断然有利ですが、既存建物の範囲内で設計を行う必要があります。
例えば、単世帯の実家を二世帯にリノベーションしようと思うと、広さ的な部分で無理が生じます。
よほど大きな建物でなければ、増築をしなければいけないケースがほとんどになるのではないでしょうか?
また、構造上、間取りの変更にも制約があるので、既存建物の間取りによっては、理想的な間取りができなケースもあります。
もちろん、うまく間取り変更できるケースも多くあります。
そういった複合的な要素を勘案して、どちらが本当によいのかを判断しなくてはいけませんからとっても難しいのが実情です。
実際、当社へお越しのそういったケースで迷われている方は多くございます。
03.実際に、建て替えの場合とリノベーションをした場合での、設計と見積もりを見比べることが重要です
ここからがとても重要なことになりますが、新築だけを扱っている建設事業者やリノベーション・リフォームだけを扱っている事業者だと、両社へ相談しながら比較検討する必要があります。
当然、新築事業者は建て替え(新築)を勧めるとおもわれますし 、リノベーションリフォーム事業者はリノベーションを勧めるはずです。
公平公正な目線でどちらがいいのか、相談はできませんので、最終的にはご自身の判断で決めなければいけません。
出来れば、公平な目線で相談できる専門家がいるとベストですね。
04.実際の事例紹介
では、実際の事例を見ながら解説をしていきます。
【リノベでの計画】
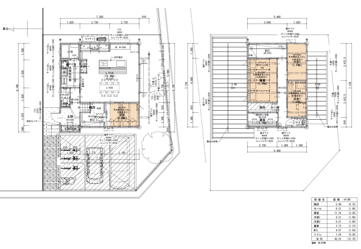
下の図は既存建物から、耐震性能を考えて間取り変更の計画図です。
赤部分が変更箇所です。

下の図は建て替え(新築)の場合の平面計画図です。
見てもわかる通り、自由度が圧倒的に違ってきます。
リノベの場合は大枠のカタチの変更はできず、また耐震の件も考慮して、残さなければいけない壁も出てきます。
土地に対しての駐車場や建物位置の配置計画も、一から自由に計画できるのは建て替え(新築)の魅力ですね。
では、金額についてみていきましょう。
外壁や屋根は既存のままの場合で、約2500万円
外壁や屋根も外観もやり替えるとプラス300万 合計で約2800万円となります。



建て替え(新築)の場合では、太陽光発電(約150万)・外構を含んだ総金額で、3、567万円
これに解体費用が250万程度(下の見積もり書には含まれておりません)
総合計で約3,800万かかることになります。

結論から言えば、約1,000万の差額となります。
これをどう判断するか?
リノベの場合でも、断熱気密の工事をしっかり施工すれば、住み心地や快適性はさほど変わらないと言えます。
大きな違いは、やはり間取りの自由度と耐震性の安心感。
これを1,000万かけても安いとするか、高いとするか、そこの価値判断だと思います。
ご予算を重視するのであれば、リノベが◎
間取りや住まい、外観デザインを強く希望されるのであれば建て替えが◎
いうのは簡単ですが、実際は大いに迷われる方がほとんどです。
高気密高断熱を専門としながら、リノベも新築も手掛けるエムズアソシエイツだからこそ公平な目線で、両者を比較できる資料をつくることができます。
建て替えか?リノベか?
お悩みの方はぜひご相談ください。 無料相談実施中です!
Contact
試してみませんか?
ファーストプランは「設計のお試しプラン」。
契約前から設計士が直接対応し、平面図(間取り図)、CGパース、1/100スケールの精密な模型をご提供します。さらに、外構工事や細かな備品まで含めた詳細な見積書を作成し、消費税を含めた最終的な引渡し価格を明確に把握できます。